Revolutionise your MEP engineering with AI-powered automation. From floor plan analysis to compliance documentation, Arcus handles it all in seconds.

From automated unit placement to AI-powered documentation, Arcus streamlines every aspect of fire alarm design.
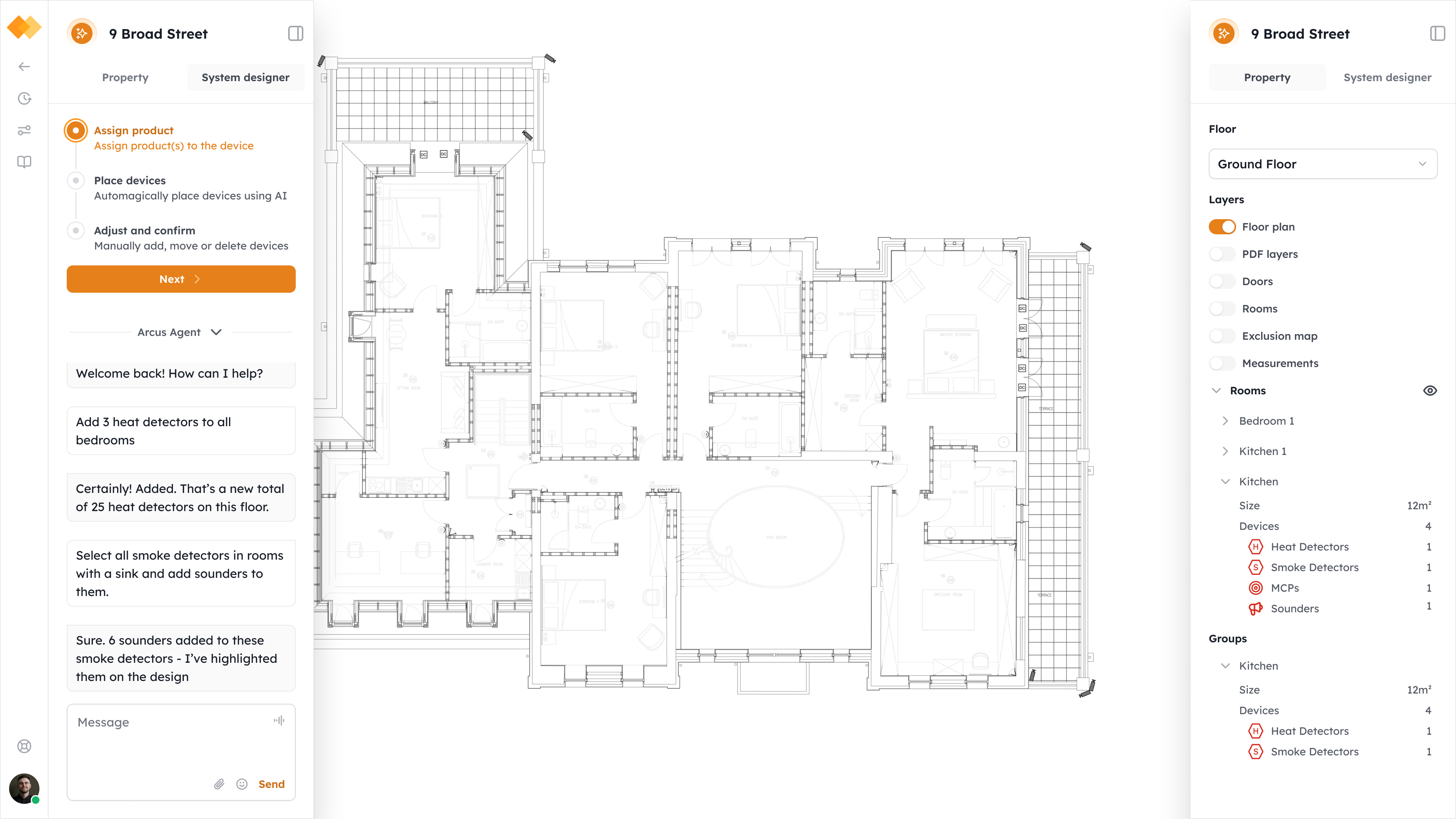
Our AI analyses your building floor plan and applicable regulations to automatically place all fire alarm units. What used to take hours now happens in seconds, with perfect compliance guaranteed.
Generate accurate quotes and material takeoffs from your designs in seconds. Any design changes automatically sync with your takeoffs, keeping everything up-to-date.
Create and issue maintenance jobs for completed installations at your properties. Keep track of service schedules, compliance requirements, and maintenance history.
Office Building A - Floor 2
Due: 15 Jan 2025
Warehouse Complex - Zone 3
Due: 30 Jan 2025
Retail Store - Main Floor
Completed: 10 Jan 2025
Hotel Complex - All Floors
Scheduled: 5 Feb 2025
Collaborate seamlessly with clients and optimise workflow across teams. From junior designers to senior engineers, everyone stays in sync.
Updated the smoke detector placement in Zone A
Sarah - Lead EngineerLooks good! Compliance check passed ✓
Mike - Project ManagerCan we review the cable routing tomorrow?
Client - Property ManagerCreate and store documentation in seconds, then query them using AI in natural language. Never lose track of project details or compliance requirements again.
BS 5839 Part 1 Analysis
✓ All requirements met
Step-by-step guide
32 pages generated
Complete parts list
156 line items
Accessible to your whole team. Simplify edits and adjustments, without the need for extensive training or experience.
Streamline knowledge and workflow across teams, from junior designers to senior experts.
Fuel your productivity and experience the vast difference between legacy reporting tools and Arcus's advanced & fully automated documentation engine.
This is why Arcus outperforms traditional tools. Compare the features and discover why Arcus is the smarter choice for modern fire alarm design.
| Feature | Arcus | Competitors |
|---|---|---|
| Cloud-based | Yes | No |
| AI system design | Yes | No |
| Calculations, diagrams & drawings | Yes - automated | Manual |
| Automated document generation | Yes - powered by AI | Manual |
| Automated cable routing | Coming soon | Manual |
| Collaboration tools | Yes | No |
| Automated export functionality | Robust export engine | Manual |
Scale as your team grows. All plans include our core AI-powered design automation and instant quote generation from your designs.
Perfect for small teams
Ideal for growing engineering firms
For larger organisations with custom needs
Terms apply.
Fire alarms are just the beginning. We're launching comprehensive solutions for Security, Sprinkler and Plumbing, HVAC, and Electrical systems.
Join leading engineering firms who are already saving hours and improving accuracy with Arcus.